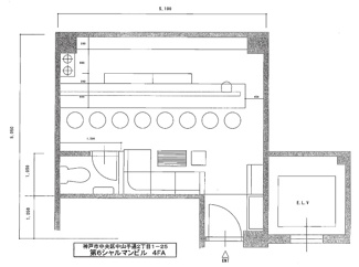
第6シャルマンビル 4階
三宮の東門にある賃貸スナック物件です。
- 賃料/坪単価
- 12万1,000円 /
1.89万円
- 坪数/面積
- 6.40坪 /
21.15㎡
- 所在階
- 4階
- 管理費・共益費
- 22,000円
- 敷金
- 10万円
- 礼金
- 2ヶ月
担当者のコメント 武田旬子

- 三宮の東門沿いのバー・スナック向けテナントです。
ご興味ございましたら是非お問い合わせくださいませ!
☆-☆-☆-☆-☆-☆-☆-☆-☆-☆
賃貸店舗・オフィス・売買 専門
三宮不動産(アサヒ興産株式会社)
神戸市中央区中山手通1-2-13-2F
TEL:078-325-8787
FAX:078-325-8700
URL:http://www.sannomiya.co.jp/
☆-☆-☆-☆-☆-☆-☆-☆-☆-☆
ポイント・特徴
物件概要
【店舗一部】 物件番号:61562414 情報更新日:2026年02月09日 次回更新予定日:2026年02月23日| 所在地 | 兵庫県神戸市中央区中山手通2丁目 | ||
|---|---|---|---|
| 交通 | |||
| 坪数(面積) | 6.40坪(21.15㎡) | ||
| 賃料/坪単価 | 12.1万円/1.89万円 | 管理費・共益費 | 22,000円 |
| 敷金/礼金/保証金 | 10万円/2ヶ月/- | 償却/敷引 | -/- |
| 更新料 | - | 権利金/雑費 | -/- |
| 造作譲渡金 | - | 駐車場/月額料金 | 無/- |
| 保険加入/料金 | 有/- | 保険名/保険期間 | -/- |
| 保証人代行義務 | - | 保証会社 | - |
| 保証会社詳細 | - | 向き | - |
| 築年月(築年数) | 1986年 7月 (築39年) | 契約期間 | 2年 |
| 種別/構造 | 店舗一部/鉄筋コンクリート | 用途地域 | 商業 |
| 部屋/所在階/階建 | 4FA/4階/- | 総戸数 | - |
| 現況/引渡時期 | 空家/相談 | 取引態様 | 一般媒介 |
| 物件番号 | 61562414 | 取引条件の有効期限 | 2026年02月23日 |
| 設備条件 |
|
||
| 備考 |
○店舗リース契約時、ガス警報器リース料:毎月352円 ○高圧電力基本料:毎月約9,274円 ○カラオケ・有線放送指定業者有 ○約6坪 ○鍵交換代(税込)13,200円 ○看板代(税込)85,800円 ○火災保険料(貸主指定有) ○保証会社要 私達は「三宮不動産」と屋号に掲げる通り、三宮・元町エリアで店舗、事務所、テナント、居抜き物件などの事業用物件をご紹介させて頂いております。 私達は日々最新の情報を集め、この街で商売をお考えの皆様に少しでもお力添えできるよう、いつでも提供できる準備がございます。 店舗探しは商売のスタート地点であり、また店舗の立地や賃料とは商売繁盛の最も大切な要素の一つだと考えております。 まずは是非ご一報ください。 弊社スタッフが団結して、皆様の開業をサポートさせていただきます。 |
||
| 条件(その他) | 看板代:8万5,800円 鍵交換代:1万3,200円 火災保険(別途見積) | ||
| 取扱会社 |
|
||
※地図上に表示される物件の位置は付近住所に所在することを表すものであり、実際の物件所在地とは異なる場合がございます。













